M4 | Rozkładowe | Balkon | 4 Pokoje | 2 Tarasy
Jabłonna Pokaż na mapie ›
Ogłoszenie archiwalne Wygasło: Niedziela, 24 Sierpień, 2025 18:49
849 000 zł
10747 zł/m2
Szczegóły ogłoszenia
- Kategoria: Mieszkania / Sprzedaż
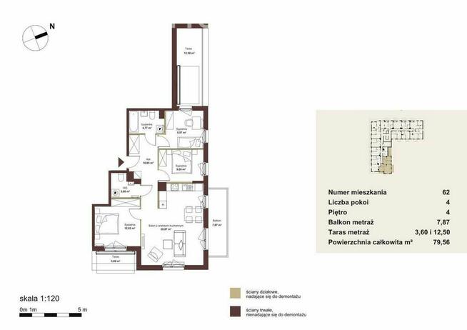
- Powierzchnia:79 m2
- Liczba pokoi:4 pokoje
- Zabudowa:Blok
- Tech. budowy:Inne
- Piętro :4 piętro
- Liczba pięter:4 piętra
- Rynek:Pierwotny
- Rok budowy:2025
- Sprzedaż:Pośrednik
- Inf. dodatkowe:Balkon
- Cena: 849 000 zł / 10747 zł/m2
Opis oferty
** Brak podatku 2% PCC ***** 0% PROWIZJI OD KUPUJĄCEGO w tej inwestycji ***
Mam przyjemność zaoferować Państwu 4-pokojowe mieszkanie na 4
piętrze z przestronnymi dwoma tarasami i balkonem w nowej inwestycji.
Kameralny budynek zaprojektowany z dbałością o detale oferuje
przestrzeń pełną komfortu, harmonii i funkcjonalności. Idealna
lokalizacja w Jabłonnie sprawia, że jest to miejsce, w którym
można cieszyć się życiem na swoich warunkach.
To idealna propozycja dla osób ceniących nowoczesne wnętrza i
funkcjonalny układ. Inwestycję cechuje dbałość o szczegóły
architektoniczne i funkcjonalne. Inwestycja znajduje się w
bezpośrednim sąsiedztwie Warszawy, na pograniczu Białołęki i
Jabłonny. Miejsce otoczone zielenią - na terenie inwestycji znajduje
się 1,3 ha lasu sosnowego stanowiącego fragment ogromnego kompleksu
Lasu Legionowskiego.
W skład mieszkania wchodzi:
- Pokój dzienny z aneksem kuchennym (28,87 m2)
- Pokój 1 (12,82 m2) + Taras (3,60 m2)
- Pokój 2 (9,80 m2)
- Pokój 3 (9,57 m2) + Taras (12,50 m2)
- Łazienka (4,77 m2)
- Toaleta (3,60 m2)
- Przedpokój (10,85 m2)
+ Balkon (7,87 m2)
+ Taras nr 1 (12,50 m2)
+ Taras nr 2 (3,60 m2)
Posiadam w swojej ofercie i chętnie zaprezentuję każde inne
dostępne mieszkanie w tej inwestycji.
W ramach inwestycji dostępne są dodatkowo miejsca postojowe w
garażu podziemnym (nieobowiązkowe) w cenie 35 000 zł, a także
komórki lokatorskie.
Bliskość centrów handlowych, szkół, placówek medycznych oraz
licznych atrakcji kulturalnych sprawia, że codzienne sprawy
załatwisz szybko i sprawnie. Inwestycja oferuje pełen wachlarz
udogodnień.
Rozbudowana infrastruktura – szkoły, żłobki, przychodnie, sklepy
i usługi w zasięgu ręki. Wszystko to razem tworzy budynek klasy
premium.
Aktywność - w okolicy znajdują się liczne miejsca kulturalne i
rozrywkowe, takie jak: Restauracje, Punkty usługowe, Sklepy,
ścieżki rowerowe oraz zielone przestrzenie rekreacyjne takie jak Las
Legionowski i ścieżka wzdłuż Wisły.
Doskonała lokalizacja - zapewnia szybki dostęp do Warszawy.
------------------------------
Jeżeli Twój zakup wiąże się ze sprzedażą innej nieruchomości
daj znać! Bezpiecznie przeprowadzę Cię przez cały proces.
Finansując zakup nieruchomości kredytem warto wcześniej sprawdzić
swoją zdolność kredytową. Nasi doradcy finansowi pomogą w
organizacji wszystkich formalności niezbędnych do uzyskania kredytu
oraz przygotują dla Państwa ofertę na bardzo preferencyjnych
warunkach.
-------------------------------
Aby umówić się na prezentację, zapraszam do kontaktu:
Piotr Kostyra
Agent Nieruchomości
@
536 - pokaż numer telefonu -
-------------------------------
Powyższa oferta ma charakter informacyjny i nie jest ofertą w
rozumieniu art. 66 par. 1 Kodeksu Cywilnego. Opis nieruchomości
został sporządzony na podstawie informacji uzyskanych od
właściciela i może być aktualizowany. Skontaktuj się z nami w
celu zapoznania się ze szczegółami oferty.
Właścicielem ogłoszenia wraz z jego elementami jest Freedom
Nieruchomości Sp. z o.o. lub podmioty współpracujące. Wszelkie
prawa zastrzeżone. Kopiowanie, rozpowszechnianie oraz korzystanie z
niniejszych materiałów w jakikolwiek inny sposób wykraczający poza
dozwolony użytek określony przepisami ustawy z 4 lutego 1994 r. o
prawie autorskim i prawach pokrewnych (Dz. U. 1994, nr 24 poz. 83 z
późn. zm.) bez pisemnej zgody Freedom Nieruchomości Sp. z o.o. lub
podmiotów współpracujących jest zabronione i może stanowić
podstawę odpowiedzialności cywilnej oraz karnej. Ponadto niniejsze
materiały stanowią tajemnicę przedsiębiorstwa Freedom
Nieruchomości Sp. z o.o. lub podmiotów współpracujących w
rozumieniu ustawy z dnia 16 kwietnia 1993 r. o zwalczaniu nieuczciwej
konkurencji (Dz. U. z 2003 r., Nr 153, poz. 1503 z późn. zm.).
"Właścicielem ogłoszenia wraz z jego elementami jest Freedom
Nieruchomości Sp. z o.o. lub podmioty współpracujące. Wszelkie
prawa zastrzeżone. Kopiowanie, rozpowszechnianie oraz korzystanie z
niniejszych materiałów w jakikolwiek inny sposób wykraczający poza
dozwolony użytek określony przepisami ustawy z 4 lutego 1994 r. o
prawie autorskim i prawach pokrewnych (Dz. U. 1994, nr 24 poz. 83 z
późn. zm.) bez pisemnej zgody Freedom Nieruchomości Sp. z o.o. lub
podmiotów współpracujących jest zabronione i może stanowić
podstawę odpowiedzialności cywilnej oraz karnej.
Ponadto niniejsze materiały stanowią tajemnicę przedsiębiorstwa
Freedom Nieruchomości Sp. z o.o. lub podmiotów współpracujących w
rozumieniu ustawy z dnia 16 kwietnia 1993 r. o zwalczaniu nieuczciwej
konkurencji (Dz. U. z 2003 r., Nr 153, poz. 1503 z późn. zm.).
Niniejsze ogłoszenie nie stanowi oferty w rozumieniu Kodeksu
Cywilnego, lecz ma charakter informacyjny."
Sprawdź zainteresowanie tym ogłoszeniem
Wyświetlenia
Data dodania
Ostatnio widziany
Obserwujących
Wysłane zapytania
Odsłony telefonu
Powiadom o podobnych ogłoszeniach
Lokalizacja: Jabłonna
Kategoria: Nieruchomości » Mieszkania » Sprzedaż
Cena: od 721500 zł do 976500 zł Powierzchnia : od 67 m2 do 91 m2
Chcę otrzymywać powiadomienia o nowych ofertach
To ogłoszenie jest archiwalne i może być nieaktualne.
Piotr Kostyra
Konto firmowe
Na Lento.pl od 02 sty 2024
Odpowiada szybko
Strona użytkownika
- Wypromuj ogłoszenie
- Zgłoś naruszenie
- Edytuj/usuń ogłoszenie
- Udostępnij ogłoszenie
- Dodaj na Facebook













